Habitação Coletiva AL3
S. Martinho do Bispo, CoimbraHabitação Coletiva AL3 - SMB Coimbra
Localização: São Martinho do Bispo, Rua da Liberdade - Coimbra
Projeto: 2022 | Construção: 2025
Área de construção: 945 m²
Apresentação do Projeto
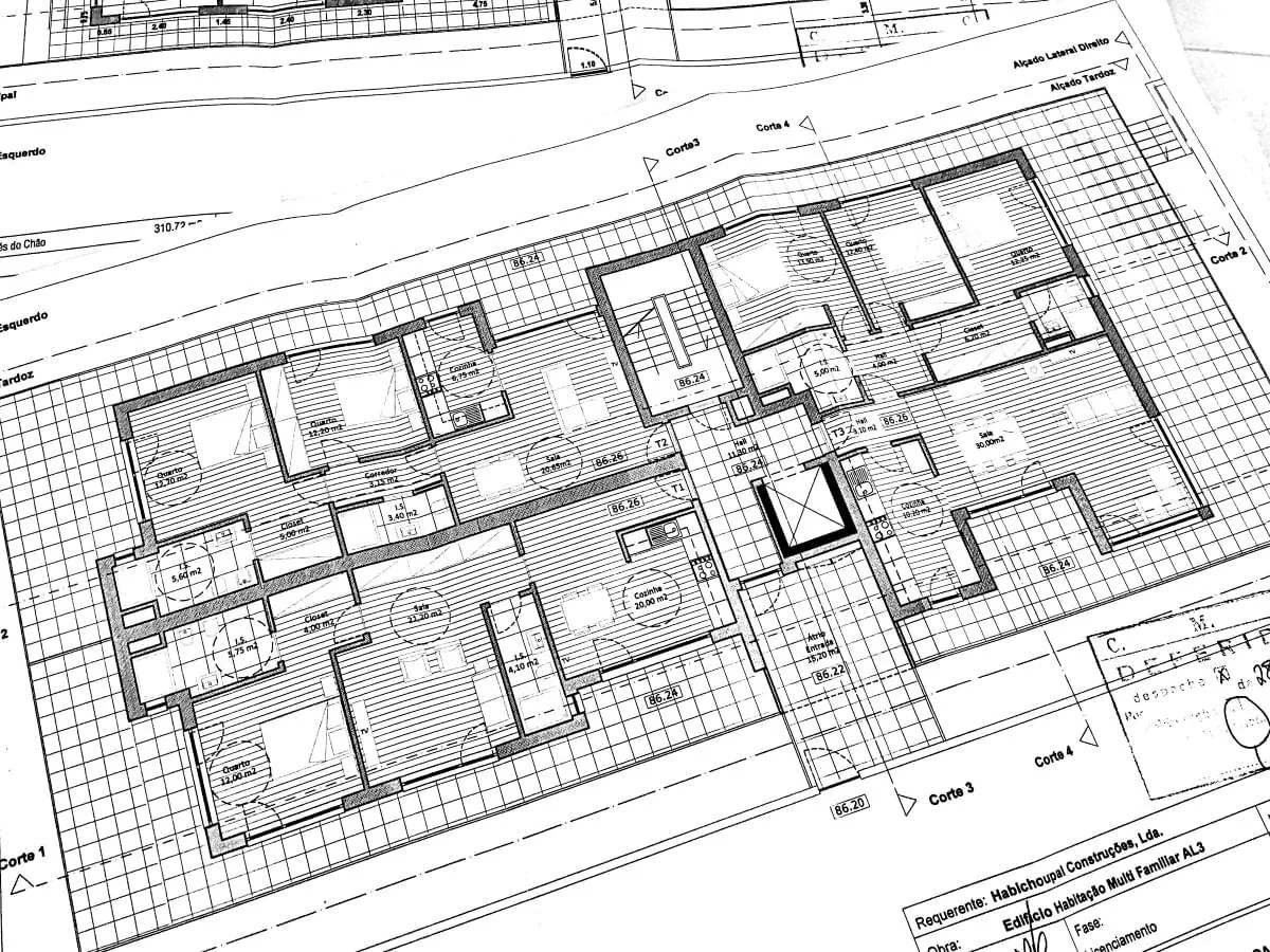
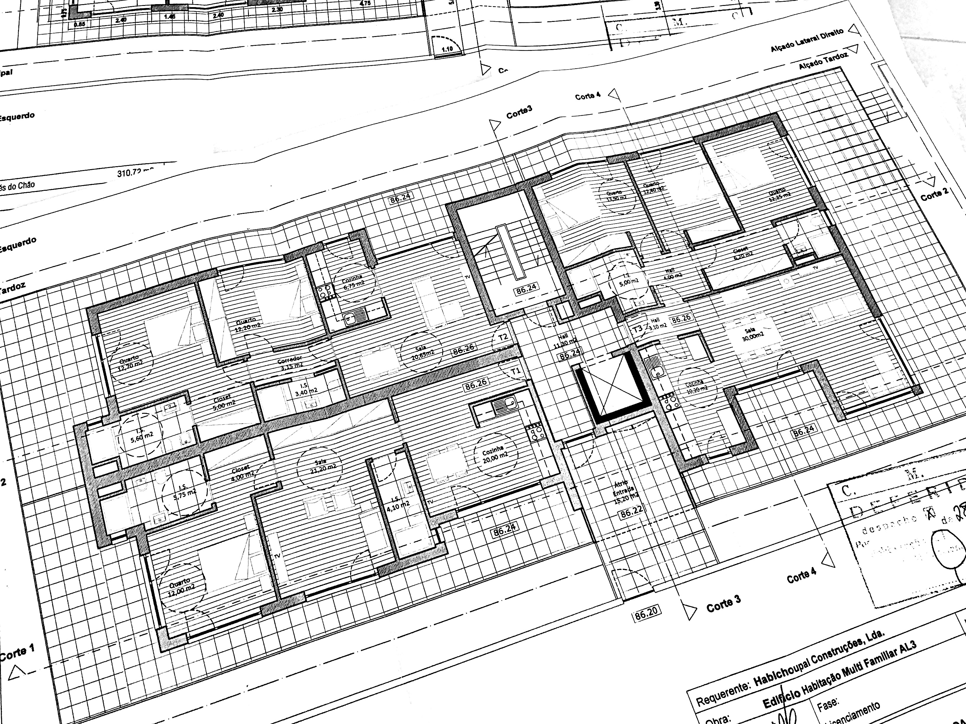
Localizado na Rua da Liberdade, em São Martinho do Bispo, o edifício AL3 apresenta-se como uma proposta de habitação coletiva contemporânea, composta por nove apartamentos distribuídos por três pisos e uma cave com garagens individuais. O projeto insere-se numa envolvente urbana consolidada, integrando-se de forma harmoniosa no tecido existente, através de uma linguagem arquitetónica marcada pela clareza volumétrica e sobriedade formal.
As varandas amplas e os vãos envidraçados generosos reforçam a relação entre interior e exterior, assegurando luminosidade natural, conforto térmico e qualidade de vida aos espaços interiores. A organização funcional privilegia a vivência familiar e a eficiência espacial, distinguindo claramente as zonas social e íntima, de modo a garantir conforto e privacidade.
Conceito da proposta
Em termos formais, o edifício caracteriza-se por laminas brancas horizontais que recortam o volume principal, conferindo ritmo e leveza à fachada. Estes elementos definem varandas contínuas, que funcionam como extensões naturais das áreas de estar, verdadeiras salas ou terraços de verão, transformando-se, com a exposição solar, em jardins de inverno.










